国标离心泵的主要功能零部件
发布时间:2013-4-6 11:51:08 来源:海坦泵业 点击次数:5548
叶轮:
离心泵的叶轮是使液体获得能量的主要部件。其形式有闭式、半开式及开式三种,如图3-10所示,
.jpg)
图3-10 离心泵叶轮形式
(a)闭式叶轮:(b)半开式叶轮: (c)开式叶轮
通常有铸造加工而成。闭式叶轮有前盖板、后盖板,叶片与 轮毂等组成。半开式叶轮无前盖板开式叶轮无前后盖板,叶轮中的叶片有圆柱形(单向弯曲)和扭曲型(双向弯曲)之分。闭式叶轮的平面投影如图3-11所 示。叶轮流道面积要求变化均匀,流道中心是切圆形的连线。叶轮结构如图3-12所示。
.jpg)
图3-11 叶轮平面投影图
泵轴:
泵轴是传递功率和力矩的主要零件,,悬臂泵的叶轮装在轴的一端,另一端装支承。中小型多级泵一般采用用平轴,叶轮滑配的轴上,用短键传力,如D300泵泵轴,大型泵有的采用阶梯轴,叶轮用热套法装在轴上,叶轮与泵轴间无间隙,不会轴间窜水或冲刷,但拆装比较困难,如OK5F37泵泵轴。
泵轴与叶轮等组装在一起后,用锁紧母固定,成为高速旋转的转子。在泵组装前要进行小装,检查转子各位的径向跳动量,如果过大,泵在运行中就容易产生振动和研磨,应该设法消除,对于分段多级泵,需对转子部件做组装检查并进行动平衡检验:对于悬臂泵,需对托架部件做组装检查,其装配图如图3-13、图3-14所。
.jpg)
图3-12 叶轮结构图

图3-13 分段式多级泵转子装配图
.jpg)
图3-14 悬臂式托架部件组装图
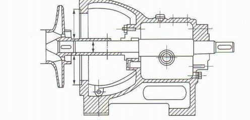
吸入室
吸入室的作用是将吸入室、环形吸入室管中的液体均匀地似*小的流动损失引入叶轮。吸入室有三种:锥形吸入室、螺旋形吸入室。
锥形吸入室如图3-15所示。其末端圆滑地度过到叶轮入口直径,锥度7°~18°,它能在叶轮入口前造成不大的液流加速度,使叶轮前流速均匀,流动损失很小。小型单吸单级悬臂式离心泵多采用此种结构。圆环形吸入室如图3-16所示。吸入流道过流面积逐渐缩小,圆环中液流速度略小于叶轮入口速度,以保证液体进入叶轮时有一个不大的加速度。这种吸放室结构简单,轴向尺寸短,但液体进入叶轮时有冲击和旋流损失,常用在单吸分段式多级离心泵中。
.jpg)
图3-15 锥形吸入室 图3-16 圆环型吸入室
螺旋形吸入室如图3-17所示,其优点是液体进入叶轮流动情况较好,速度比较均匀,但液体进入叶轮前已有预旋,对比转数大的泵,扬程损失比较明显,双吸单吸泵和和水平中开式多级泵一般采用此种结构。
.jpg)
图3-17 螺旋形吸入室
下一条离心泵理论分析技术文章:离心泵叶轮设计理论及分析http://www.054902.com/Article/T2/201.html
下一个:国标离心泵的组配的运行调节
